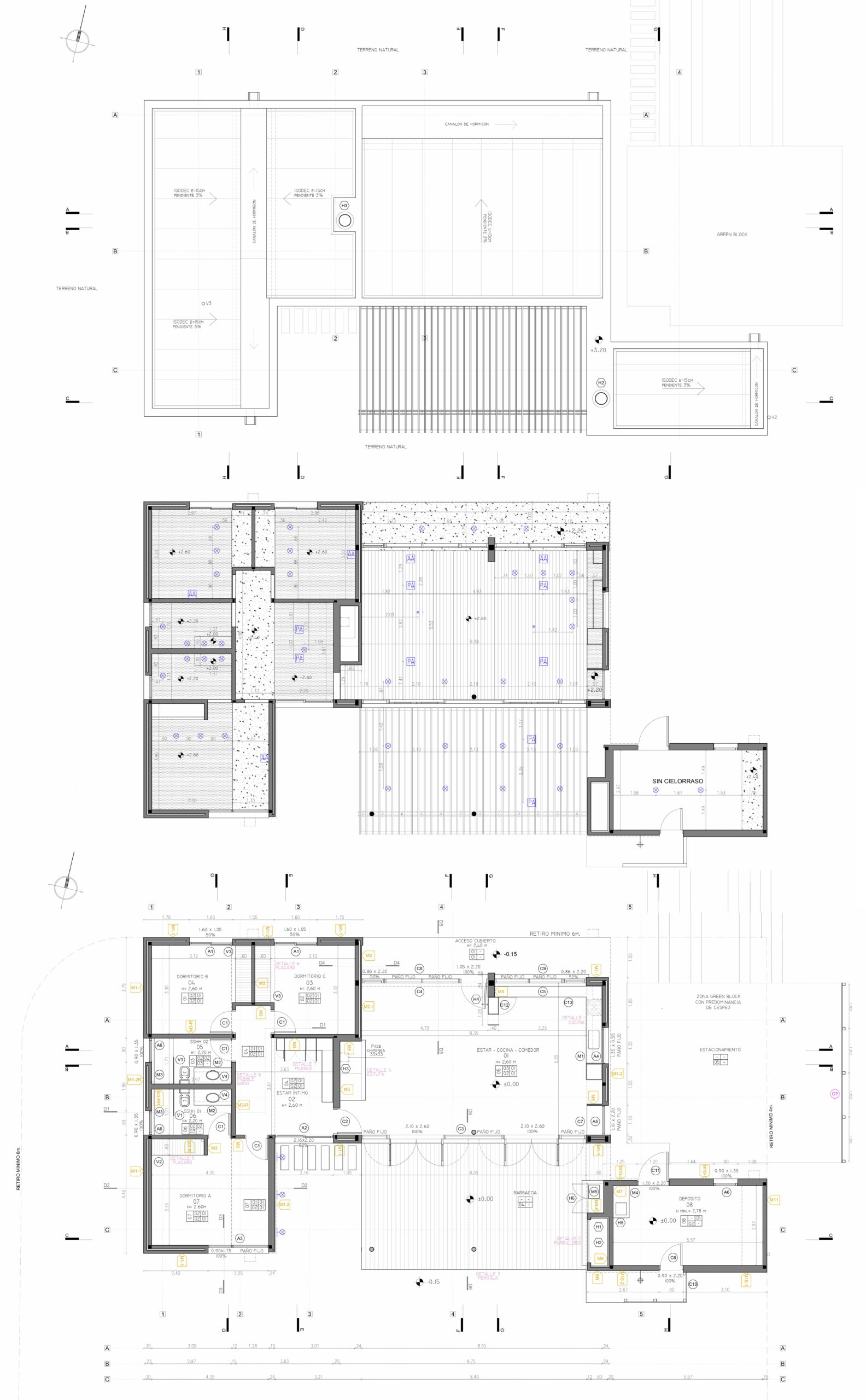
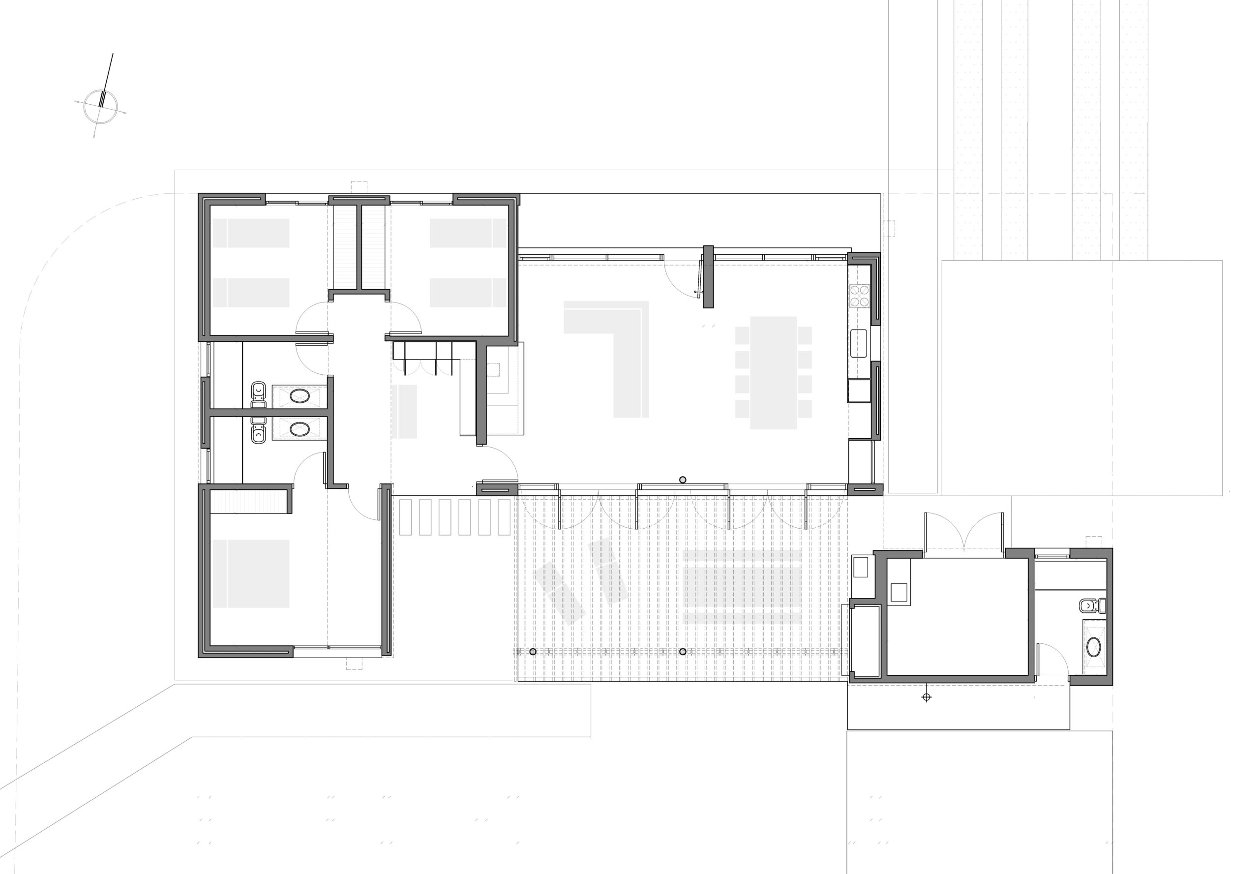
Chalet “Del Sur”. Chihuahua, Punta Ballena. Maldonado, Uruguay. Completed 2015. Designed in partnership with Executive Architect Uri Drachman linkedin.com/in/uridrachmanudarq.com Chihuahua, Punta Ballena