Skip to content
Home
Watercolor
Drawing
Architecture
@ Payette
@Chihuahua
Design Studio
About
Home
Watercolor
Drawing
Architecture
@ Payette
@Chihuahua
Design Studio
About
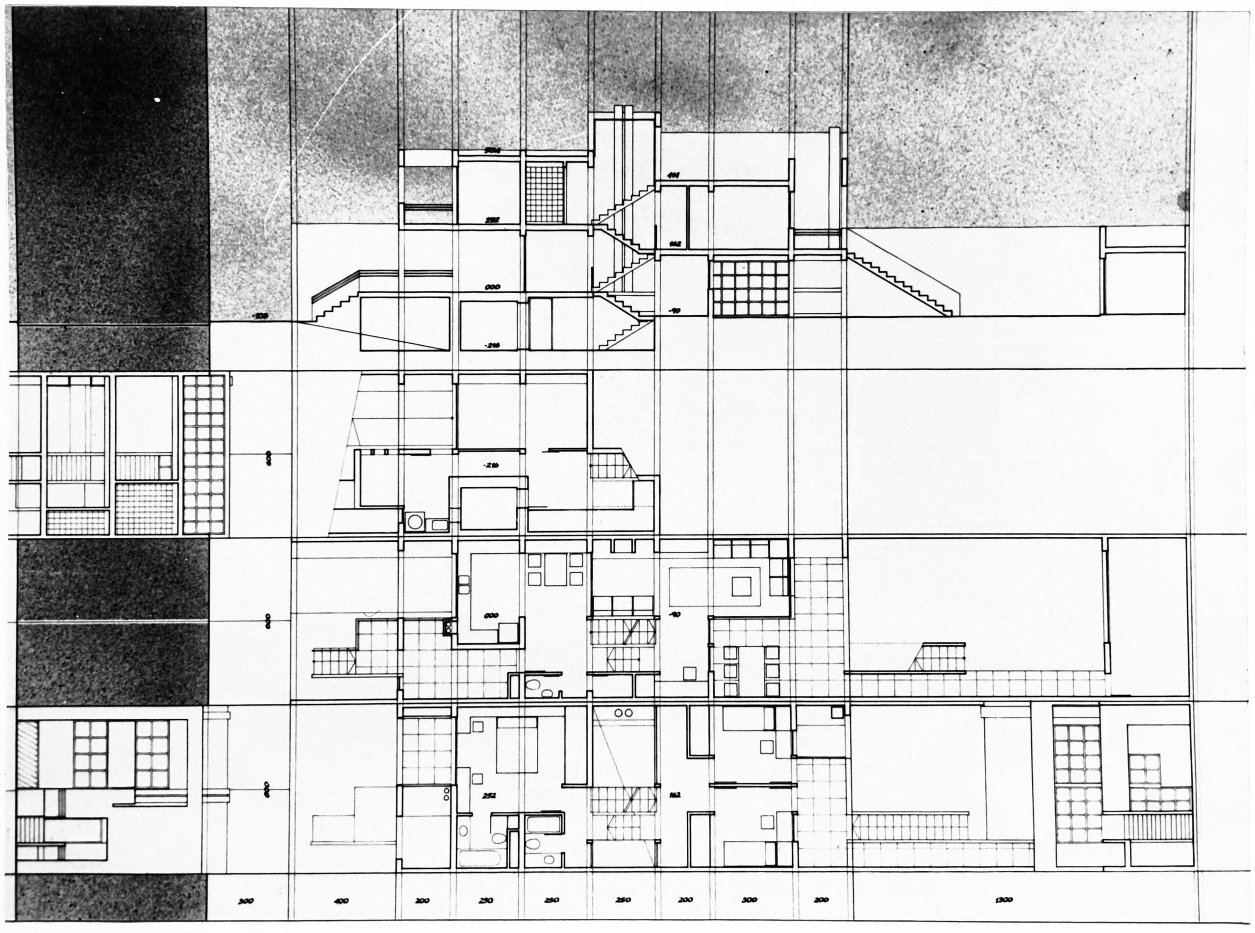
Harvard GSD: Studio Work,
1991-1993
Technion.
1985-1988